Servicehus / Toalett

Servicehus / RWC Toalett ställplats & camping

Är ert företag / camping i behov av ett servicehus, tex extra toalett, dusch, latrin, tvätt/tork eller diskmöjligheter?  Vi bygger kundanpassade servicebyggnader till din ställplats / marina / camping och en förstklassig besöksupplevelse. Skicka gärna in en förfrågan till oss vad ni är ute efter ifall ni inte hittar rätt modell på hemsidan.

Servicehus / RWC Toalett ställplats, camping, offentliga toaletter

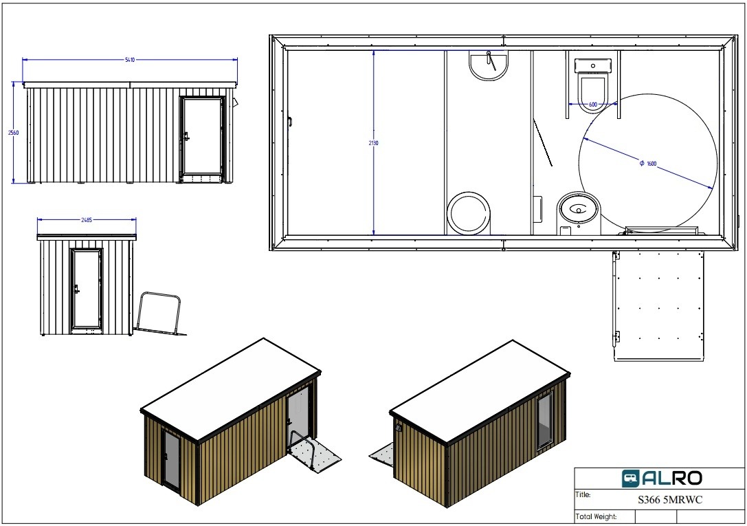
Norge Classic WC är en offentlig toalett som passar perfekt till ställplats, landskapsmiljöer. Rastplatser, camping, marina, stadsmiljö, badplatser, friluftsområden är platser med hög nyttjandegrad under korta perioder. För dessa miljöer har vi tagit fram Sthlm Classic WC3. Norge Classic WC kan anpassas med valfri kulör på fasaden. Träfasad eller ”plast-träfasad”.  Toaletten inreds / anpassas enligt önskemål. Vi bygger både med inkoppling till avlopp, eller t.ex slamtoa. Vi rekommenderar att tillval beställs i plåt / aluminium för längsta möjliga hållbarhet samt mer vandalsäker.

Varje toalett / Servicehus anpassas till kunds behov. Vi rekommenderar att välja till ”servicerum” för alla vitala komponenter för att undvika sabotage, tex VVB, elcentral mm.

 

Toalett enligt bilder :

  • Ventilation
  • Klädkrokar
  • WC-papper hållare
  • 230V-16A
  • Direktverkande element
  • Ledlyse med rörelsevakt
  • Drop-down grab rails
  • Standarddörr teknikrum
  • Ståldörr till WC rum
  • 1x 10L VVB
  • 1x Rostfritt handtork
  • 1x Rostfritt handfat
  • 1x Rostfri WC
  • 1x Rullstolsramp
  • 1x Vattenutkast utvändigt för påfyllning av t-ex vattenflaskor
  • Riktig träfasad. Valfri kulör enligt kunds önskemål
  • ¾” vatteninkoppling
  • 110mm avloppsanslutning

 

 

 

 

Frakt

  • Egen avlastning med truck. Långgafflar krävs.
  • Avlastning ska kunna ske 07:30-17:30 Måndag-Torsdag. Fredagar från 07:30-16.

Betalningsvillkor

  • Leasing via Wasa kredit.
  • Kund fixar egen finans
  • Kund betalar vid hämtning*

* Vi bokad transport av vårt egna åkeri gäller följande:

  1. Vid leasing / finans. Scannade papper ska mailas till oss dagen innan leverans. Innan avlastning ska original signat papper överlämnas till vår egna förare.
  2. Betalning på faktura så ska pengarna finnas på vårt konto innan avlastning. Överföring när lastbil är på plats är ok. Ingen avlastning förrän vi har betalt. Kund ansvarar för att betalningen sker direkt. Vid inbetalning till vårt BG.nr måste betalning göras 2 dagar innan leverans.

Vid hämtning av annat åkeri / egen hämtning. Signade papper innan vagn får lämna vår gård. Betalning på vårt konto innan vagn lämnar vår gård.

För återkommande kunder finns möjlighet till 5,10,20 & 30 dagars betalning. Kontakta oss för mer info.